MASTER 180

To nowoczesna interpretacja klasycznej willi miejskiej, która doskonale wpisuje się w miejski lub podmiejski kontekst.
Pow. pomieszczeń:
183,12 m2
Pow. użytkowa :
175,67 m2
Min. powierzchnia działki:
20,70 m x 18,40
Powierzchnia zabudowy:
113,27 m2
Ilość kondygnacji:
2
Sypialnie:
4
Salon z jadalnią:
1
Kuchnia (otwarta):
1
Łazienki:
2
Gabinet:
1
Pralnia:
1
Pomieszczenie gospodarcze:
1
Dach skośny:
20-22°
Stan deweloperski
849 000 zł brutto
Parter
Zestawienie powierzchni:
1
Hol
16.85 m2
2
Łazienka
5.00 m2
3
Pom. gospodarcze
3.62 m2
4
Gabinet
8.73 m2
5
Kuchnia
12.12 m2
6
Spiżarnia
3.84 m2
7
Salon z jadalnią
40.92 m2
8
Schody
4.88 m2
Razem
95.96 m2
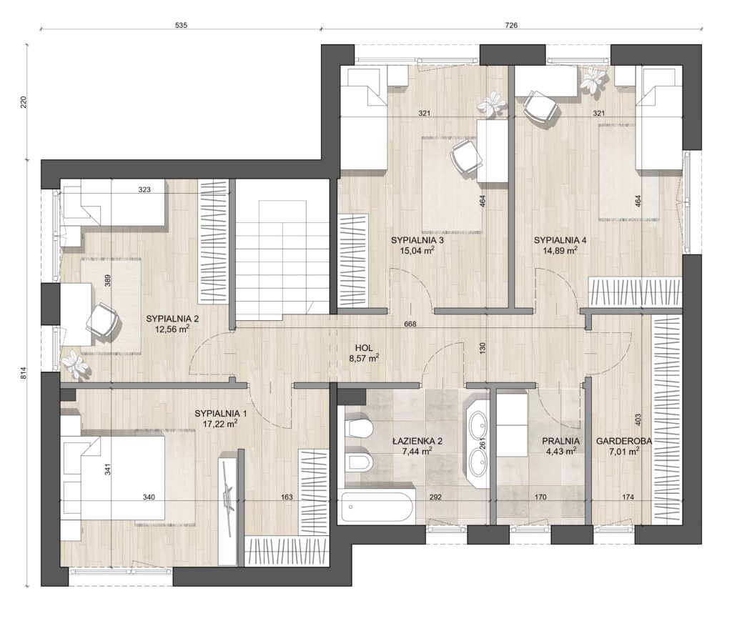
Piętro
Zestawienie powierzchni:
1
Hol
8.57 m2
2
Łazienka
7.44 m2
3
Sypialnia 1
17.22 m2
4
Sypialnia 2
12.56 m2
5
Sypialnia 3
15.04 m2
6
Sypialnia 4
14.89 m2
7
Garderoba
7.01 m2
8
Pralnia
4.43 m2
Razem
87.16 m2
MASTER 180
Parter
95.96 m2
Piętro
87.16 m2
Razem
183.12 m2
Prosta, klasyczna bryła architektoniczna podkreśla nowoczesny charakter MASTER 180. Dolna kondygnacja wykończona jest piaskowym kolorem tynku, który tworzy optycznie cięższą bazę budynku, osadzając bryłę w terenie i nadając jej stabilny charakter.
Zobacz kartę techniczną
Białe gzymsy biegnące dookoła budynku – zarówno przy parterze, jak i piętrze – wprowadzają architektoniczny rytm i nawiązują do klasycznych detali miejskich kamienic.
Antracytowa stolarka okienna i dach tworzą elegancki i zdecydowany kontrapunkt kolorystyczny.
MASTER 180 to dom, który odpowiada współczesnym standardom architektonicznym. Jest estetycznie oszczędny, a jednocześnie maksymalnie funkcjonalny.
Chcesz skonfigurować ten dom
po swojemu?
Skontaktuj się z nami

Przestrzeń na wszystko, żeby komfortowo mieszkać

W cenie domu 180 znajdziesz:
Wsparcie formalno-prawne
Zapewniamy bezpłatne eksperckie doradztwo oraz pełny wykaz niezbędnych do zgromadzenia dokumentów.
Projekt architektoniczno-budowlany
W cenie domu otrzymasz kompletny projekt architektoniczno-budowlany do adaptacji, dostosowany do Twoich potrzeb i zgodny z obowiązującymi normami.
Budynek w stanie deweloperskim
Nasze domy są oddawane w stanie deweloperskim w tym m.in.: kompletna konstrukcja budynku (płyta fundamentowa, ściany, dach); stolarka okienna i drzwi zewnętrzne, instalacje wewnętrzne, wylewki pod podłogi.
Chcesz dowiedzieć się więcej o rozwiązaniach, które stosujemy w naszych domach?
Pobierz standard wykonania MASTER 180